產地江蘇浙江
是否進口否
訂貨號001
品牌XILIN/西林
型號上門勘測費,CBD20EX定金
貨號001
類型電力叉車
加工定制是
額定起重量2000(kg)
貨叉長度1000(mm)
載重量2000(kg)
貨叉最低位82(mm)
行走方式電瓶叉車
工業車輛電動托盤搬運車
特種行業防爆叉車
最大起升高度




蓄電池防爆托盤搬運車,是采用蓄電池為動力源,以電機為動力,通過齒輪傳動驅動車輛行走,貨叉的起升靠直流電機和液壓傳動,推動油缸上下運動起升貨叉和貨物。由于該車的行走與起升都是采用電動,駕駛方式為站駕式,轉向操作為舵把式轉向,所以它具有省力、效率高、貨物運行平穩、操作簡單、安全可靠、噪音小,無污染等特點。該車的電器件均做了防爆處理,因此,該車能夠在易燃易爆等危險環境中使用。該車采用24伏大容量電瓶,大大延伸了一次充電后使用的時間。該車適用于在硬質、平坦的地面進行貨物搬運作業。
應用范圍
①該車是嚴格按照國家標準GB19854《爆炸性環境用工業車輛防爆技術通則》、GB3836.1《爆炸性環境電器設備第1部分:通用要求》GB3836.2《爆炸性氣體環境用電氣設備第2部分:隔爆型“d”》設計制造的產品。主要用于II類(除煤礦外的其他爆炸性氣體或蒸氣環境)IIA、IIB級,溫度組別為T1-T4的爆炸性氣體環境的1區和2區危險場所。同時GB12476.1-2000可燃性粉塵環境用電設備第1部分:用外殼和限制表面溫度保護的電氣設備第1節:電氣設備的技術要求,可以在存在可燃性分成環境的21區和22區中使用。
②該車主要用于室內外短距離的裝卸和搬運貨物,不得超載作業。不宜作長距離運送貨物用。
③禁止將車輛用于規定以外的用途,禁止搭載乘人。


| 型號 | 電動防爆搬運車CBD20Ex | ||
| 驅動方式 | 電動 | ||
| 駕駛方式 | 站駕 | ||
| 核定載荷 | Q(kg) | 2000 | |
| 載荷中心距 | c(mm) | 600 | |
| 前懸距 | x(mm) | 2184/704 | |
| 輪距 | y(mm) | 2745/1265 | |
| 自重(帶電瓶) | kg | 1020 | |
| 軸負載,貨叉前移—前/后軸 | kg | 1300/1420 | |
| 軸負載,貨叉收回—前/后軸 | kg | 600/120 | |
| 輪子 | 聚氨酯輪 | ||
| 輪子尺寸,前輪 | Φ250×70 | ||
| 輪子尺寸,后輪 | Φ82×126 | ||
| 附加輪 | Φ127×57 | ||
| 輪,前后數量(X=驅動輪) | 1×+2/2 | ||
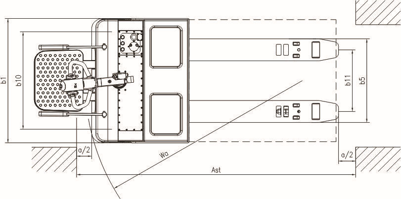
| 前輪輪距 | b10mm) | 736 | |
| 后輪輪距 | b11m) | 820 | |
| 起升高度 | h3(mm) | 120 | |
| 操作手柄在驅動位置的位置 | h14(mm) | 1150/1430 | |
| 降低時高度 | h13(mm) | 82 | |
| 總體長度 | l1(mm) | 3277/1797 | |
| 叉面長度 | l2(mm) | 794 | |
| 車體寬度 | b1 (mm) | 1020 | |
| 貨叉尺寸 | s/e/l(mm) | 54/180/1220(1100) | |
| 貨叉外寬 | b5(mm) | 1000 | |
| 軸距中心離地間隙 | m2(mm) | 28 | |
| 通道寬度--托盤1000×1200(1200跨貨叉放置) | Ast(mm) | 4300 | |
| 通道寬度--托盤800×1200(1200沿貨叉放置) | Ast(mm) | 3440 | |
| 轉彎半徑 | Wa(mm) | 3015/1795 | |
| 爬坡度--滿載/空載 | % | 6/12 | |
| 爬坡能錄,滿載/空載 | % | 10/20 | |
| 行車制動 | 電磁制動 | ||
| 駕駛員耳邊噪音等級符合DIN12053 | dB(A) | 70 | |

